진공 그리퍼 구조 설계

현재 최신 버전 (2.1.2)에 대한 매뉴얼을 보고 계십니다. 다른 버전에 액세스하려면 페이지 오른쪽 상단 모서리에 있는 '버전 전환' 버튼을 클릭하세요.

■ 현재 사용하고 있는 제품의 버전이 확실하지 않은 경우에는 언제든지 당사 기술 지원팀에 문의하시기 바랍니다.

이 섹션에서는 진공 그리퍼를 예시로 물류 산업에서 진공 그리퍼의 구조 설계를 소개하며, 표준 부품 선정, 진공 시스템 설계 및 기타 액세서리 설계를 포함합니다.

주요 구조 설계

진공 그리퍼 주요 구조를 설계할 때 다음 사항에 주의하세요.

  • 주요 구조의 강도와 강성을 확보하기

    진공 그리퍼의 주요 구조는 견고해야 하며, 필요할 경우 응력 시뮬레이션을 수행해야 합니다. 일부 하중 지지 부품에는 강성이 낮은 알루미늄 프로파일 사용은 권장되지 않습니다.

    main structure 1
  • 완충 장치를 추가하기

    진공 그리퍼의 수직 방향으로 완충 장치를 추가하면 대상 물체와 그리퍼를 어느 정도 보호할 수 있습니다. 치수가 더 큰 진공 그리퍼를 설계할 때는 한 쪽에서 힘을 가하면 진공 그리퍼가 눌린 후 원래 모양으로 돌아오지 않을 수도 있다는 상황도 고려해야 합니다.

    main structure 2
  • 회전 영향을 유의하기

    특정 피킹 또는 배치 포즈가 필요한 경우, 진공 그리퍼로 물체를 피킹하는 동안 대상 물체가 회전하는 것은 바람직하지 않습니다. 따라서 선택된 진공 그리퍼 어댑터에는 회전 방지 기능이 포함되어야 합니다. 대상 물체의 흡착 면에 알 수 없는 기울기 각도가 있는 경우, 이 기울기 각도를 보정하기 위해 진공 그리퍼 끝단에 어댑터를 추가해야 합니다.

    main structure 3

흡착컵 선택

흡착컵을 선택할 때 다음 사항에 주의하세요.

  • 흡착컵 수명

    벨로우즈 진공 그리퍼(아코디언 진공 그리퍼라고도 함)은 일반적으로 폼 진공 그리퍼보다 수명이 더 깁니다.

  • 흡착컵 타성

    일반적으로 흡착컵으로 들어 올리는 물체가 무거울수록 관성이 커지며, 이는 로봇이 진공 그리퍼를 운반할 때 동작 성능에 부정적인 영향을 줄 수 있습니다.

  • 흡착컵 재질

    소프트 흡착컵은 상자의 표면에 더 쉽게 밀착되므로, 일반적으로 실리콘 벨로우즈 흡착컵과 같은 소프트 소재의 흡착컵이 선호됩니다.

    그러나 상자가 무거운 경우 소프트 흡착컵으로는 상자를 견고하게 흡착하지 못할 수 있으며, 이때는 하드 흡착컵을 선택해야 합니다.

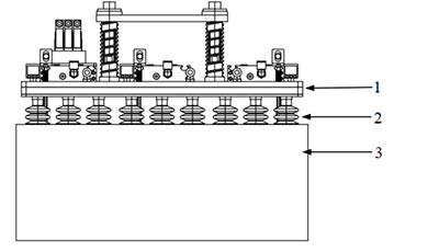
    아래 그림과 같습니다. 1은 진공 그리퍼 본체, 2는 흡착컵 노즐, 3은 상자입니다.

    nozzle

진공 시스템 선택

진공 시스템을 설계할 때 다음 사항에 주의하세요.

  • 진공 시스템 공기 유량

    진공 시스템에 큰 공기 유량이 필요할 때는 보통 팬이 선택됩니다. 그리퍼 내부의 체크 밸브를 통한 공기 유량 균형을 보장하고 전체 성능을 향상시키기 위해, 팬에 릴리프 밸브를 설치하는 것이 권장됩니다.

  • 가스 누출

    압축 가스가 크게 누설되면 흡착력이 현저히 감소합니다. 이 경우, 진공 소스의 성능을 개선하고 공기 공급 라인의 유효 단면적을 적절히 늘려 흡착 능력을 향상시켜야 합니다.

  • 흡착력에 영향을 미치는 요소

    진공 발생기와 흡착컵 사이의 거리와 연결 튜빙의 크기는 흡착컵의 실제 흡착력에 영향을 미칠 수 있습니다. 진공 발생기와 흡착컵 사이의 거리는 가능한 한 짧게 유지하고, 유동 저항을 줄이기 위해 적절한 직경의 튜빙을 선택하는 것이 일반적으로 권장됩니다.

  • 극단적인 상황

    전원 차단과 같은 극단적인 상황이 발생할 수 있습니다. 상시 닫힘 공급 밸브 또는 홀드 기능이 있는 밸브를 선택해야 합니다. 진공 해제 밸브가 있는 경우, 스로틀 밸브를 사용하여 진공 해제 유량을 조절함으로써 진공 해제 과정의 제어성과 안정성을 향상시켜야 합니다.

센서 설계

센서를 설계할 때 다음 사항에 주의하세요.

  • 드롭 감지 센서의 위치와 개수를 적절하게 설정하기

    다양한 상자 크기와 피킹 방식에 대응하기 위해, 실제 필요에 따라 드롭 감지 센서(광전 센서 + 탐사기)의 위치와 개수를 설정해야 합니다.

    다음 그림은 일반적인 상자 피킹 방식입니다. 1은 상자, 2는 센서 위치, 3은 흡착컵입니다.

    sensor 1

    센서 위치와 개수를 설정할 때는 위에 표시된 두 가지 피킹 방법을 모두 고려해야 합니다(아래 그림 참조).

    sensor 2
  • 극단적인 상황

    센서를 배포할 때는 진공 그리퍼의 흡착 경로와 가장 작은 상자의 적용 범위를 종합적으로 고려해야 합니다. 예를 들어, 센서가 상자의 가장자리를 감지할 수 있으며, 로봇이 이동 과정에서 약간 흔들리면 센서가 오판을 일으킬 수 있습니다. 이러한 위험을 줄이기 위해 두 센서 간의 간격을 적절히 줄여 감지 안정성을 높일 수 있습니다.

    sensor 4
  • 센서 수명

    상대적인 운동이 있는 센서 부품의 경우, 수명에 유의해야 합니다. 최적화는 구조 설계와 재료 선택을 통해 달성할 수 있으며, 예를 들어 탐사기의 가동 부품에는 스테인리스강을 사용하여 내마모성과 신뢰성을 향상시킬 수 있습니다. 또한 센서 마운팅 판금은 설치 강도와 안정성을 확보하기 위해 두께가 최소 3mm 이상일 것을 권장합니다.

    sensor 5

바코드 리더 설계

바코드 리더를 설계할 때 다음 사항에 주의하세요.

  • 바코드 위치

    진공 그리퍼가 피킹 과정에서 약간 압축되기 때문에, 로봇이 상자를 피킹한 후 바코드를 인식할 때에는 바코드와 상자 상단 사이에 일정한 거리를 유지해야 합니다. 권장 거리는 70mm에서 150mm입니다. 그렇지 않으면 아래 그림에 표시된 피킹 포즈의 바코드 판독 성공률이 영향을 받을 수 있습니다.

    barcode reader 1
  • 바코드 인쇄 품질

    물류 산업에서는 1D 바코드가 일반적으로 사용되며, 보통 0.2mm~0.5mm의 정밀도를 가집니다. 양호한 바코드 인식 효과를 보장하기 위해, 바코드 인쇄 품질은 일반적으로 B 등급 이상을 충족해야 합니다.

  • 동적 바코드 인식 권장

    빠른 속도의 상자 피킹 시나리오에서는 가능한 한 정적 인식 대신 동적 바코드 인식을 사용해야 합니다.

  • 바코드 리더 배치 방식

    일반적인 바코드 리더 배치 방식은 아래 그림과 같습니다.

    • 고정식 장착: 주로 어셈블리 라인 옆이나 로봇이 협동하여 물류 제품을 스캔하는 시나리오에서 사용됩니다.

      barcode reader 2
    • 로봇 말단에 장착: 멀티 자유도 및 멀티 포즈 바코드 인식을 구현할 수 있습니다. 대상 물체 표면이 투명 재질로 덮여 있거나 아크릴 등 투명 소재를 통해 바코드를 읽어야 하는 경우, 바코드 주변에 광원이 반점을 형성하여 인식 성공률에 영향을 주지 않도록 해야 합니다.

      barcode reader 3
    • 로봇 윗팔에 장착: 이 장착 방식은 바코드 인식을 로봇 모션과 통합하여 생산 효율을 높이는 데 도움이 됩니다.

      barcode reader 4
  • 바코드 리더 브래킷 설계

    바코드 리더 브래킷은 여러 방향으로 조정할 수 있어야 합니다. 아래 그림에 표시된 브래킷을 기반으로 단순화할 수 있습니다.

    barcode reader 5

기타 액세서리 설계

기타 액세서리를 설계할 때 다음 사항에 주의하세요.

  • 에어 호스 자유 길이

    에어 호스의 자유 길이는 로봇의 6축 동작에 맞추어 설계하여 굽힘이 발생하지 않도록 해야 합니다.

    other accessories 1
  • 에어 호스 라우팅

    에어호스의 전반적인 경로는 가능한 한 원활하고 유연해야 합니다. 로봇이 서로 다른 워크스테이션에서 작동할 수 있으므로, 에어 호스는 (아래 그림과 같이) 상부로 배치할 수 있으며, 이때 팬이 제공하는 기류와 압력도 함께 고려해야 합니다.

    other accessories 4
  • 에어 호스 마모 방지

    에어 호스가 로봇, 진공 그리퍼 또는 기타 부품과 직접 접촉하는 구간에는 내마모성 천이나 보호용 튜브를 사용하여 호스의 수명을 연장해야 합니다.

    other accessories 5
  • 파이프라인 레이아웃

    에어 호스와 기타 파이프라인의 레이아웃은 로봇 동작 중 충돌이나 마찰이 발생하지 않도록 종합적으로 고려해야 하며, 그렇지 않으면 가스 누출이 발생할 수 있습니다.

    other accessories 2
  • 부품 수명

    고하중이나 간헐적인 충격이 있는 시나리오에서는 로봇 동작 중 부품 파손을 방지하기 위해 부품의 수명을 신중하게 고려해야 합니다.

    other accessories 3

이 페이지가 도움이 되었습니까?

다음 방법을 통해 피드백을 보내주실 수 있습니다:

저희는 귀하의 개인정보를 소중히 다룹니다.

당사 웹사이트는 최상의 사용자 경험을 제공하기 위해 쿠키를 사용하고 있습니다. "모두 수락"을 클릭하시면 쿠키 사용에 동의하시는 것이며, "모두 거부"를 클릭하시면 이 웹사이트 방문 시 귀하의 정보가 추적되거나 기억되지 않도록 단일 쿠키만 사용됩니다.